

地元密着35年!川口市、蕨市、戸田市、さいたま市はお任せください! 当社売主物件、未公開の物件などまとめてご案内♪もちろん資料請求だけでも大歓迎です、お気軽にお問い合わせくださいませ♪
物件詳細情報
物件No.31021967165
| 所在地 | 埼玉県蕨市塚越6丁目 | ||
|---|---|---|---|
| 交通 | 京浜東北・根岸線「西川口」駅徒歩18分 | ||
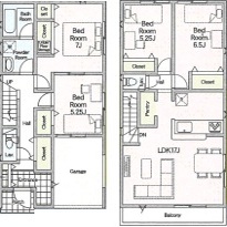
| 間取 | 4LDK + 収納充実,明るいリビング,2階LDK | ||
| 土地面積 | 95.48m² 実測 | ||
| 建物面積 | 100.44m² 実測 | ||
| 販売戸数 | 1戸 | 構造・規模 | 木造 2階建て |
| 築年・入居 | 2025年9月 | 建物現況 | 完成済 |
| 建築確認番号 | 第25UDI1W建01490号 | 駐車スペース | あり |
| 引渡時期 | 即引渡可 | 国土法届出 | 不要 |
| 地目 | 宅地 | 用途地域 | 第一種住居地域 |
| 建ぺい率 | 60% | 容積率 | 200% |
| 都市計画 | 市街化区域 | 権利種類 | 所有権 |
| 接道 | 南側10.9M公道に6.9M接道 | 取引態様 | 媒介 |
| 設備 | 公営水道、本下水 都市ガス,電気,上水道,下水道,システムキッチン,カウンターキッチン,浄水器,給湯,トイレ2箇所,温水洗浄便座,シャンプードレッサー,浴室乾燥機,24時間換気システム,収納スペース,床下収納,モニター付きインターホン,火災警報器等設置済 |
||
| 備考・制限等 | 省エネルギー性能:目安光熱費 | ||
こだわり項目
床下収納浄水器システムキッチンカウンターキッチン温水洗浄便座浴室乾燥機24時間換気システム小学校800m以内保育園・幼稚園800m以内公園800m以内
- ※価格は物件の代金総額を表示しており、消費税が課税される場合は税込み価格です。(1,000円未満は切り上げ。)
税率は引き渡し時期により異なりますので、各物件の詳細につきましてはお問い合わせください。 - ※敷地権利が借地権のものは価格に権利金を含みます。
- ※制作中に内容が変更される場合もありますので、あらかじめご了承ください。
- ※購入の前には物件内容や契約条件についてご自身で十分な確認をしていただくようにお願いいたします。
- ※完成予想図はいずれも外構、植栽、外観等実際のものとは多少異なることがあります。
- ※CG合成の画像の場合、実際とは多少異なる場合があります。
周辺地図
周辺施設一覧
- ショッピングセンター
- スーパー
- コンビニ
- ドラッグストア
- ホームセンター
- 飲食店
- その他店舗
- 商店街
- 大学
- 専門学校
- 高校・高専
- 中学校
- 小学校
- 保育園
- 幼稚園
- 公民館・児童館
- 病院
- 郵便局
- 役所
- 図書館
- 金融機関
- 警察・消防
- 趣味・娯楽施設
- 公園・運動施設
- 周辺の街並み
- 駅
- その他
お問い合せ先
- 株式会社CHコスモホーム住宅販売 蕨駅前本店
- お電話でのお問い合わせは
048-447-9888「ホームページを見た」とお問い合わせください - 埼玉県蕨市塚越1-3-19
- 営業時間:9:00~19:00
- 定休日:水曜日・木曜日
- 免許番号:埼玉県知事免許(6)第18791号















