
地元密着35年!川口市、蕨市、戸田市、さいたま市はお任せください! 当社売主物件、未公開の物件などまとめてご案内♪もちろん資料請求だけでも大歓迎です、お気軽にお問い合わせくださいませ♪
物件詳細情報
物件No.31019913966
| 所在地 | 埼玉県川口市芝中田2丁目 | ||
|---|---|---|---|
| 交通 | 京浜東北・根岸線「蕨」駅徒歩18分 | ||
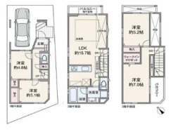
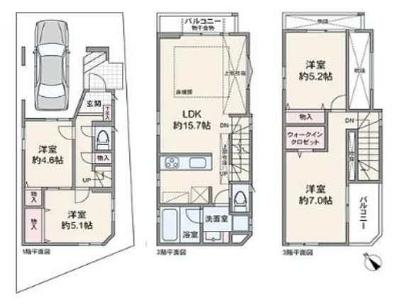
| 間取 | 4LDK + 洋 7・6.2・5.1・4.6 (洋室7帖、洋室6.2帖、洋室5.1帖、洋室4.6帖) | ||
| 土地面積 | 64.75m² 公簿 | ||
| 建物面積 | 106.49m² 公簿 | ||
| 構造・規模 | 木造 3階建て | 築年月 | 2018年7月築 |
| 地目 | 宅地 | 用途地域 | 第二種住居地域 |
| 建ぺい率 | 60% | 容積率 | 200% |
| 都市計画 | 市街化区域 | 現況 | 居住中 |
| 引渡時期 | 相談 | 権利種類 | 所有権 |
| 接道 | 北側6.4M公道に4.8M接道 | 取引態様 | 媒介 |
| 備考・制限等 | 省エネルギー性能:目安光熱費 | ||
こだわり項目
保育園・幼稚園800m以内公園800m以内
- ※価格は物件の代金総額を表示しており、消費税が課税される場合は税込み価格です。(1,000円未満は切り上げ。)
税率は引き渡し時期により異なりますので、各物件の詳細につきましてはお問い合わせください。 - ※敷地権利が借地権のものは価格に権利金を含みます。
- ※制作中に内容が変更される場合もありますので、あらかじめご了承ください。
- ※購入の前には物件内容や契約条件についてご自身で十分な確認をしていただくようにお願いいたします。
- ※完成予想図はいずれも外構、植栽、外観等実際のものとは多少異なることがあります。
- ※CG合成の画像の場合、実際とは多少異なる場合があります。
周辺地図
周辺施設一覧
- ショッピングセンター
- スーパー
- コンビニ
- ドラッグストア
- ホームセンター
- 飲食店
- その他店舗
- 商店街
- 大学
- 専門学校
- 高校・高専
- 中学校
- 小学校
- 保育園
- 幼稚園
- 公民館・児童館
- 病院
- 郵便局
- 役所
- 図書館
- 金融機関
- 警察・消防
- 趣味・娯楽施設
- 公園・運動施設
- 周辺の街並み
- 駅
- その他
お問い合せ先
- 株式会社CHコスモホーム住宅販売 蕨駅前本店
- お電話でのお問い合わせは
048-447-9888「ホームページを見た」とお問い合わせください - 埼玉県蕨市塚越1-3-19
- 営業時間:9:00~19:00
- 定休日:水曜日・木曜日
- 免許番号:埼玉県知事免許(6)第18791号













