- 川口市・蕨市・戸田市の不動産はコスモホーム住宅情報へ
- 新築一戸建てをエリアから探す
- さいたま市桜区
- 大字大久保領家
- コスモシリーズ大久保領家P2 南・西・北三方角地!
新築一戸建て
コスモシリーズ大久保領家P2 南・西・北三方角地!
情報更新日:2026/02/17 次回更新予定日:2026/03/03
所在地埼玉県さいたま市桜区大字大久保領家[周辺地図]
交 通埼京線「南与野」駅徒歩31分





南・西・北道路、三方角地!! タイミングによってはカラーセレクトできます!
地元愛あふれる営業担当が新築戸建や中古、土地からのご提案や建物等‥、ご資金計画のご相談までトータルサポートさせていただきます。~蕨本店~蕨本店:蕨駅東口徒歩10秒!です。お子様連れのお客様はキッズコーナーが、車でご来店のお客様は提携駐車場がございます。CHコスモホーム住宅販売までお気軽に遊びに来て下さい♪
地元愛あふれる営業担当が新築戸建や中古、土地からのご提案や建物等‥、ご資金計画のご相談までトータルサポートさせていただきます。~蕨本店~蕨本店:蕨駅東口徒歩10秒!です。お子様連れのお客様はキッズコーナーが、車でご来店のお客様は提携駐車場がございます。CHコスモホーム住宅販売までお気軽に遊びに来て下さい♪
すべての画像
~現地写真~もうすぐ完成です 街並みに馴染む、落ち着きのある佇まい。心地よい暮らしが始まります
~外観予想パース~ ・計画段階の図面を描いたイメージ図です。また今後予告なく変更になる場合がございます。
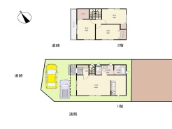
~生活動線の良い間取り~車2台可能です。(車種限定)
~現地写真~もうすぐ完成です 新しい暮らしを育む、確かな安心感のある住まい
~間取り~生活動線の良い間取りです
・同仕様・
・同仕様・
~現地写真~3方向角地のため陽当たり良好です
担当スタッフより

- 神宮千賀子
- 〇南・西・北道路、三方角地!!
・2階建て3LDK 車2台
お客様のご希望条件お知らせください、条件にあった物件も一緒にご案内させて頂きます。住宅ローンのご相談も承ります。是非お気軽にお問い合わせください。
ご自宅へお迎え、最寄りの駅などで待ち合わせ、ご来店などご相談ください。
ご希望などあれば周辺環境、お客様のご希望の物件なども一緒にご案内いたします。
物件詳細情報
物件No.20000424845
| 所在地 | 埼玉県さいたま市桜区大字大久保領家 | ||
|---|---|---|---|
| 交通 | 埼京線「南与野」駅徒歩31分 京浜東北・根岸線「北浦和」駅バス16分 バス停「大泉院通り」停歩8分 東武東上線「志木」駅バス33分 バス停「埼玉大学」停歩7分 |
||
| 間取 | 3LDK | ||
| 土地面積 | 90.16m² 公簿 (私道22m²別に有) | ||
| 建物面積 | 79.48m² | ||
| 販売戸数 | 1戸 | 構造・規模 | 木造 2階建て |
| 築年・入居 | 2026年2月中旬 | 建物現況 | 更地 |
| 建築確認番号 | 第SJK-KX255112780号 | 引渡時期 | 期日指定有(2026年3月中旬) |
| 国土法届出 | 不要 | 地目 | 宅地 |
| 用途地域 | 第一種住居地域 | 建ぺい率 | 60% |
| 容積率 | 200% | 都市計画 | 市街化区域 |
| 権利種類 | 所有権 | 接道 | 南側4M私道に13M接道 西側4M公道に5M接道 北側4M私道に12M接道 |
| 小学校区 | さいたま市立大久保東』小学校(620m) | 取引態様 | 代理 |
| 設備 | 公営水道、本下水、都市ガス | ||
こだわり項目
角地平坦地南側道路小学校800m以内保育園・幼稚園800m以内スーパー400m以内公園800m以内
- ※価格は物件の代金総額を表示しており、消費税が課税される場合は税込み価格です。(1,000円未満は切り上げ。)
税率は引き渡し時期により異なりますので、各物件の詳細につきましてはお問い合わせください。 - ※敷地権利が借地権のものは価格に権利金を含みます。
- ※制作中に内容が変更される場合もありますので、あらかじめご了承ください。
- ※購入の前には物件内容や契約条件についてご自身で十分な確認をしていただくようにお願いいたします。
- ※完成予想図はいずれも外構、植栽、外観等実際のものとは多少異なることがあります。
- ※CG合成の画像の場合、実際とは多少異なる場合があります。
周辺地図
周辺施設一覧
- ショッピングセンター
- スーパー
- コンビニ
- ドラッグストア
- ホームセンター
- 飲食店
- その他店舗
- 商店街
- 大学
- 専門学校
- 高校・高専
- 中学校
- 小学校
- 保育園
- 幼稚園
- 公民館・児童館
- 病院
- 郵便局
- 役所
- 図書館
- 金融機関
- 警察・消防
- 趣味・娯楽施設
- 公園・運動施設
- 周辺の街並み
- 駅
- その他
お問い合せ先
- 株式会社CHコスモホーム住宅販売 蕨駅前本店
- お電話でのお問い合わせは
048-447-9888「ホームページを見た」とお問い合わせください - 埼玉県蕨市塚越1-3-19
- 営業時間:9:00~19:00
- 定休日:水曜日・木曜日
- 免許番号:埼玉県知事免許(6)第18791号
- 川口市・蕨市・戸田市の不動産はコスモホーム住宅情報へ
- 新築一戸建てをエリアから探す
- さいたま市桜区
- 大字大久保領家
- コスモシリーズ大久保領家P2 南・西・北三方角地!


















