新築一戸建て
浦和区瀬ケ崎4P2
情報更新日:2026/01/20 次回更新予定日:2026/02/03
所在地埼玉県さいたま市浦和区瀬ヶ崎4丁目[周辺地図]
交 通京浜東北・根岸線「北浦和」駅徒歩27分





■木崎中学校・道祖土小学校まで徒歩7分!
■全居室収納付きでお部屋もスッキリ♪
■主寝室は約8帖と広く、大きなベットも設置可能です!
■自社直売につき、諸費用を抑えられます♪
※建築中につき、モデル棟をご案内しております。
現地・モデル棟のご見学、ご質問などお気軽にお問い合わせください。
■全居室収納付きでお部屋もスッキリ♪
■主寝室は約8帖と広く、大きなベットも設置可能です!
■自社直売につき、諸費用を抑えられます♪
※建築中につき、モデル棟をご案内しております。
現地・モデル棟のご見学、ご質問などお気軽にお問い合わせください。
すべての画像
~陽当り良好です♪~ 澄み渡る青空の下、穏やかな時間が流れる空間
~キッチン~ 温かみのある床材と、壁に映る光の陰影が心地よい空間
~洋室1~ 柔らかな光が満ちる、穏やかなひとときをあなたに
~カースペースございます~ (車種によります)
~LDK~ 採光窓から広がる、自然な明るさと奥行きのあるLDK
~収納力のある収納~ 整然とした収納で、すっきりと片付いた印象を与えます
~採光窓のある玄関~ 採光窓から広がる、自然な明るさが魅力的です
~洋室2~ 採光窓から広がる、自然な明るさと奥行きのある部屋
担当スタッフより

- 神宮千賀子
- ~『北浦和駅の人気の理由は!』~
〇北浦和駅は、さいたま市浦和区北浦和に位置する、JR京浜東北・根岸線の駅です。
・快速と各駅停車が停まる駅です。
・主な駅のアクセスは、大宮駅まで約7分、池袋駅まで約29分で行くことができます。
〇周辺は文教地区であるため、スーパーグローバルハイスクール指定校である「埼玉県立浦和高等学校」をはじめとする進学校が多いエリアです。
〇近隣には地元に密着した商店街があるほか、スーパー「マルエツ 北浦和東口店」や「クイーンズ伊勢丹」のほかコンビニも多数点在し、普段の買い物に便利な環境です。
〇西口から徒歩2分の位置にある「北浦和公園」は、埼玉大学の移転に伴い、大学跡地を公園として整備された大規模な公園で、音に合わせて噴水が流れる「音楽噴水」が有名です。
・その他にも「県立近代美術館」やテニスコートなどもあり多種多様に楽しめます。
物件詳細情報
物件No.20000419931
| 所在地 | 埼玉県さいたま市浦和区瀬ヶ崎4丁目 | ||
|---|---|---|---|
| 交通 | 京浜東北・根岸線「北浦和」駅徒歩27分 | ||
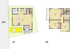
| 間取 | 3LDK | ||
| 土地面積 | 78.31m² 公簿 | ||
| 建物面積 | 81.56m² 実測 | ||
| 販売戸数 | 1戸 | 構造・規模 | 木造 2階建て 地下2階 |
| 築年・入居 | 2026年1月中旬 | 建物現況 | 建築中 |
| 建築確認番号 | 第SJK-KX255108800号 | 引渡時期 | 期日指定有(2026年1月中旬) |
| 国土法届出 | 不要 | 地目 | 宅地 |
| 用途地域 | 第一種中高層住居専用地域 | 建ぺい率 | 60% |
| 容積率 | 200% | 都市計画 | 市街化区域 |
| 権利種類 | 所有権 | 小学校区 | さいたま市立道祖土小学校(360m) |
| 中学校区 | さいたま市立木崎中学校(480m) | 取引態様 | 代理 |
| 設備 | 公営水道、本下水、都市ガス | ||
こだわり項目
平坦地閑静な住宅地床下収納全居室収納ガスコンロシステムキッチン3口以上コンロトイレ2ヶ所温水洗浄便座節水型トイレシャワー付洗面台浴室乾燥機浴室暖房追焚機能浴室1坪以上浴室に窓全居室フローリングTVモニタ付インターホン24時間換気システム小学校800m以内保育園・幼稚園800m以内公園800m以内
- ※価格は物件の代金総額を表示しており、消費税が課税される場合は税込み価格です。(1,000円未満は切り上げ。)
税率は引き渡し時期により異なりますので、各物件の詳細につきましてはお問い合わせください。 - ※敷地権利が借地権のものは価格に権利金を含みます。
- ※制作中に内容が変更される場合もありますので、あらかじめご了承ください。
- ※購入の前には物件内容や契約条件についてご自身で十分な確認をしていただくようにお願いいたします。
- ※完成予想図はいずれも外構、植栽、外観等実際のものとは多少異なることがあります。
- ※CG合成の画像の場合、実際とは多少異なる場合があります。
周辺地図
周辺施設一覧
- ショッピングセンター
- スーパー
- コンビニ
- ドラッグストア
- ホームセンター
- 飲食店
- その他店舗
- 商店街
- 大学
- 専門学校
- 高校・高専
- 中学校
- 小学校
- 保育園
- 幼稚園
- 公民館・児童館
- 病院
- 郵便局
- 役所
- 図書館
- 金融機関
- 警察・消防
- 趣味・娯楽施設
- 公園・運動施設
- 周辺の街並み
- 駅
- その他
お問い合せ先
- 株式会社CHコスモホーム住宅販売 蕨駅前本店
- お電話でのお問い合わせは
048-447-9888「ホームページを見た」とお問い合わせください - 埼玉県蕨市塚越1-3-19
- 営業時間:9:00~19:00
- 定休日:水曜日・木曜日
- 免許番号:埼玉県知事免許(6)第18791号

















